For Sale By Auction | 10:00, 22 October 2025 | Lot 72

10 College Road, Hockwold, Thetford, Norfolk IP26 4JB

*Guide | £180,000 - £200,000 (plus fees)

  • Bungalow
  • 3 Bedrooms
  • Tenure: Freehold

Call the team on 01223 483445 for more information

Auction Date

Wed 22/10/2025

Auction Time

10:00

Auction Venue

Livestream Auction

A detached extended three bedroom bungalow in need of finishing - ideal for an investor or builder

A detached three bedroom bungalow which has undergone a schedule of improvements but requires finishing. The accommodation comprises lounge, kitchen, three bedrooms one with en-suite shower and another with a en-suite shower provision which is in need of completion, further bedroom and family bathroom. Outside provides parking to front and gated access to the rear with a detached double garage/workshop. Hockwold is located 10 miles west of Thetford and offers a post office public house village hall.

Tenure

Freehold

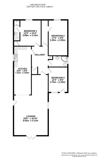
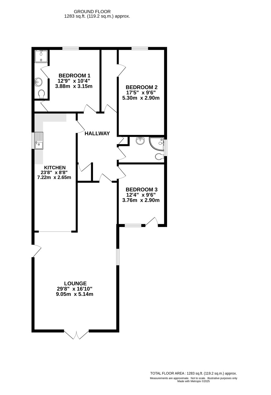
Accommodation

Hall, lounge, kitchen, bed with ensuite shower, bed 2 with unfinished en-suite, further bedroom, bathroom

Outside

Parking to front. Gated side access to rear garden with a detached double garage/workshop.

Council Tax Band

C

Energy Efficiency Rating (EPC)

Current Rating D

Services

Interested parties are requested to make their own enquiries to the relevant authorities as to the availability of services.

Local Authority

Kings Lynn and West Norfolk Borough Council

Solicitors

Leathes Prior (The Close), Ref: Rachael Hughes, Tel: 01603 281004

Important Notice to Prospective Buyers:

We draw your attention to the Special Conditions of Sale within the Legal Pack, referring to other charges in addition to the purchase price which may become payable. Such costs may include Search Fees, reimbursement of Sellers costs and Legal Fees, and Transfer Fees amongst others.

Additional Fees

Buyer's Premium - £1200 inc VAT payable on exchange of contracts.

Administration Charge - £1200 inc VAT payable on exchange of contracts.

Disbursements - Please see the legal pack for any disbursements listed that may become payable by the purchaser on completion.

View Larger Map

Disclaimer: The map preview provided above is for general guidance only and may not accurately reflect the exact location or surrounding buildings. Prospective buyers and interested parties are strongly advised to independently verify the precise location and surroundings before bidding.