For Sale By Auction | 10:00, 22 October 2025 | Lot 70

16 Quayside, Woodbridge, Suffolk IP12 1BH

*Guide | £300,000 (plus fees)

  • End of Terrace House
  • 4 Bedrooms
  • Tenure: Freehold

Call the team on 01473 558 888 for more information

Auction Date

Wed 22/10/2025

Auction Time

10:00

Auction Venue

Livestream Auction

A charming Grade II listed four-bedroom cottage situated in the highly desirable town of Woodbridge, offering potential for refurbishment.

With plenty of character and scope for improvement, this property offers the chance to create a beautiful home. Inside features two spacious reception rooms, kitchen, a cellar, two bathrooms, four bedrooms with the top-floor bedrooms boasting picturesque views. The property also benefits from a south facing garden and a parking space (rented at £40pcm through a third party). Located just a short distance from the train station, the property offers excellent transport links for commuters. Woodbridge is known for the vibrant local shops, cafés, and restaurants, as well as the peaceful charm of the nearby riverside walks.

Tenure

Freehold

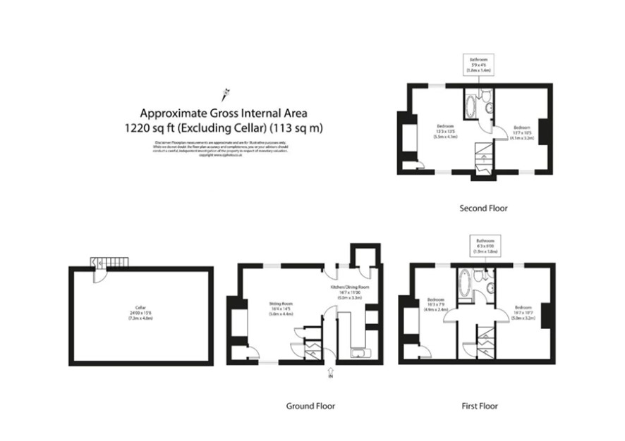
Sitting Room

16'4 x 14'5 (5.0m x 4.4m)

Kitchen / Diner

16'7 x 11'00 (5.0m x 3.3m)

Bedroom 1

16'7 x 10'7 (5.0m x 3.2m)

Bedroom 2

16'3 x 7'9 (4.9m x 2.4m)

Bathroom

6'3 x 6'00 (1.9m x 1.8m)

Bedroom 3

15'3 x 13'5 (5.5m x 4.1m)

Bedroom 4

13'7 x 10'5 (4.1m x 3.2m)

Bathroom

5'9 x 4'6 (1.8m x 1.4m)

Cellar

24'00 x 15'8 (7.3m x 4.8m)

Council Tax Band

C

Energy Efficiency Rating (EPC)

Current Rating F

Services

Interested parties are requested to make their own enquiries to the relevant authorities as to the availability of services.

Local Authority

East Suffolk Council

Solicitors

Watkins Stewart and Ross, Ref: Rebecca Grimsey, Tel: 01473 226 266

Important Notice to Prospective Buyers:

We draw your attention to the Special Conditions of Sale within the Legal Pack, referring to other charges in addition to the purchase price which may become payable. Such costs may include Search Fees, reimbursement of Sellers costs and Legal Fees, and Transfer Fees amongst others.

Additional Fees

Buyer's Premium - £1200 inc VAT payable on exchange of contracts.

Administration Charge - £1200 inc VAT payable on exchange of contracts.

Disbursements - Please see the legal pack for any disbursements listed that may become payable by the purchaser on completion.

View Larger Map

Disclaimer: The map preview provided above is for general guidance only and may not accurately reflect the exact location or surrounding buildings. Prospective buyers and interested parties are strongly advised to independently verify the precise location and surroundings before bidding.