For Sale By Auction | 10:00, 22 October 2025 | Lot 69

White Horse, Low Road, Sweffling, Saxmundham, Suffolk IP17 2BB

*Guide | £425,000 - £475,000 (plus fees)

  • Pub
  • 5 Bedrooms
  • Tenure: Freehold

Call the team on 01473 558 888 for more information

Auction Date

Wed 22/10/2025

Auction Time

10:00

Auction Venue

Livestream Auction

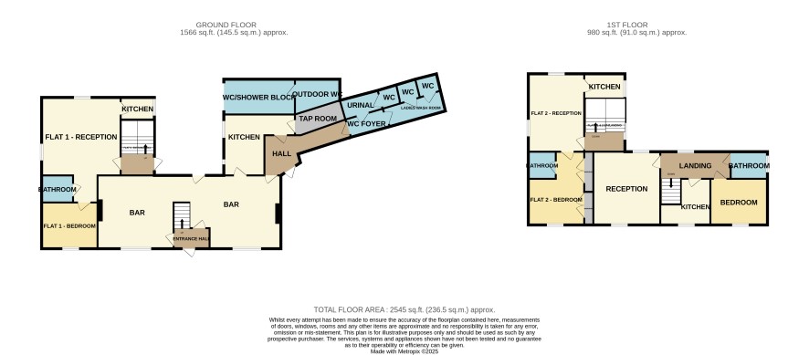
A well-established pub featuring private owner's accommodation, a holiday cottage, and two separate residential flats, all nestled in the heart of the Suffolk countryside

The Sweffling White Horse, nestled in the picturesque village of Sweffling and ideally located between Framlingham and Saxmundham, is now available due to retirement. The sale includes not only the well-established pub but also a private owner’s residence, two residential flats, and a semi-detached holiday cottage. 0.75acres (stms) can potentially be purchased by separate negotiation post auction by the winning bidder.

Tenure

Freehold

The pub

The pub enjoys strong year-round trade from both local residents and the steady stream of tourists who flock to this charming part of Suffolk. While traditionally wet-led, the business presents clear potential for growth through the introduction of food offerings. Trade has been increasing steadily year on year and is currently up 40% compared to pre-COVID levels – a testament to its popularity and ongoing success.

Owners accomodation

Featuring a lounge, master bedroom, kitchen and bathroom.

Two residential flats

Both featuring a lounge, master bedroom, kitchen and shower room, offering the potential to add income to the site by renting out. With Sizewell expanding, workers are looking for properties of this type in this area.

Holiday Cottage

Semi detached two bedroom cottage with lounge, kitchen and bathroom. Adding more income potential as a holiday let.

Council Tax Band

B

Rateable Value

Current rateable value (1 April 2023 to present) - £2,600

Energy Efficiency Rating (EPC)

Current Rating B

Services

Interested parties are requested to make their own enquiries to the relevant authorities as to the availability of services.

Local Authority

East Suffolk Council

Solicitors

Fairweather Law (Framlingham), Ref: Maddie Bazin, Tel: 01728 592970

Important Notice to Prospective Buyers:

We draw your attention to the Special Conditions of Sale within the Legal Pack, referring to other charges in addition to the purchase price which may become payable. Such costs may include Search Fees, reimbursement of Sellers costs and Legal Fees, and Transfer Fees amongst others.

Additional Fees

Buyer's Premium - £1200 inc VAT payable on exchange of contracts.

Administration Charge - £1200 inc VAT payable on exchange of contracts.

Disbursements - Please see the legal pack for any disbursements listed that may become payable by the purchaser on completion.

View Larger Map

Disclaimer: The map preview provided above is for general guidance only and may not accurately reflect the exact location or surrounding buildings. Prospective buyers and interested parties are strongly advised to independently verify the precise location and surroundings before bidding.