For Sale By Auction | 10:00, 11 February 2026 | Lot 8

39 St. Augustines Street, Norwich, Norfolk NR3 3BY

*Guide | £150,000 (plus fees)

  • Maisonette
  • Tenure: Freehold

Call the team on 01603 505 100 for more information

Auction Date

Wed 11/02/2026

Auction Time

10:00

Auction Venue

Livestream Auction

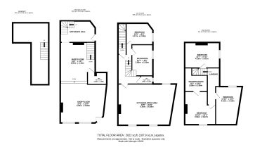
Prominent freehold mixed use property with accommodation over four floors

This large property comprises a mid-terraced building with accommodation over four floors. There is a vacant shop on the ground floor and a spacious three bedroom maisonette above which is self contained and accessed from the rear side. It is double glazed and has gas central heating. The building has been mostly refurbished and requires some finishing touches to complete the project. The property lies within the Norwich City Centre conservation area, however is not listed. The property is located opposite Sussex Street and is less than a mile north of the city centre. An ideal project for an investor.

Tenure

Freehold

Shop

Lower Ground floor: basement room Ground floor: shop, wc

Maisonette

Ground floor: rear entrance hall First floor: landing, sitting room, wc, bathroom, kitchen / dining room Second floor: landing, three bedrooms with one ensuite shower room Outside: side alley and rear yard

Viewings

Viewings by appointment and the next are on: Thursday 22 January Friday 23 January Tuesday 27 January Tuesday 10 February To book the next available appointment please call the Norwich office

Energy Efficiency Rating (EPC)

Current Rating C

Services

Interested parties are requested to make their own enquiries to the relevant authorities as to the availability of services.

Local Authority

Norwich City Council

Solicitors

PCB Solicitors, Cypress Centre, Ref: Rachel Wierzbinski, Tel: 01743 299797

Important Notice to Prospective Buyers:

We draw your attention to the Special Conditions of Sale within the Legal Pack, referring to other charges in addition to the purchase price which may become payable. Such costs may include Search Fees, reimbursement of Sellers costs and Legal Fees, and Transfer Fees amongst others.

Additional Fees

Buyer's Premium - £960 inc VAT payable on exchange of contracts.

Administration Charge - £1200 inc VAT payable on exchange of contracts.

Disbursements - Please see the legal pack for any disbursements listed that may become payable by the purchaser on completion.

View Larger Map

Disclaimer: The map preview provided above is for general guidance only and may not accurately reflect the exact location or surrounding buildings. Prospective buyers and interested parties are strongly advised to independently verify the precise location and surroundings before bidding.