For Sale By Auction | 10:00, 25 March 2026 | Lot 41

31a The Turn, Hevingham, Norwich, Norfolk NR10 5QP

*Guide | £175,000 (plus fees)

  • Residential Development
  • Tenure: Freehold

Call the team on 01603 505 100 for more information

Auction Date

Wed 25/03/2026

Auction Time

10:00

Auction Venue

Livestream Auction

An exciting development opportunity with planning permission set in over a third of an acre

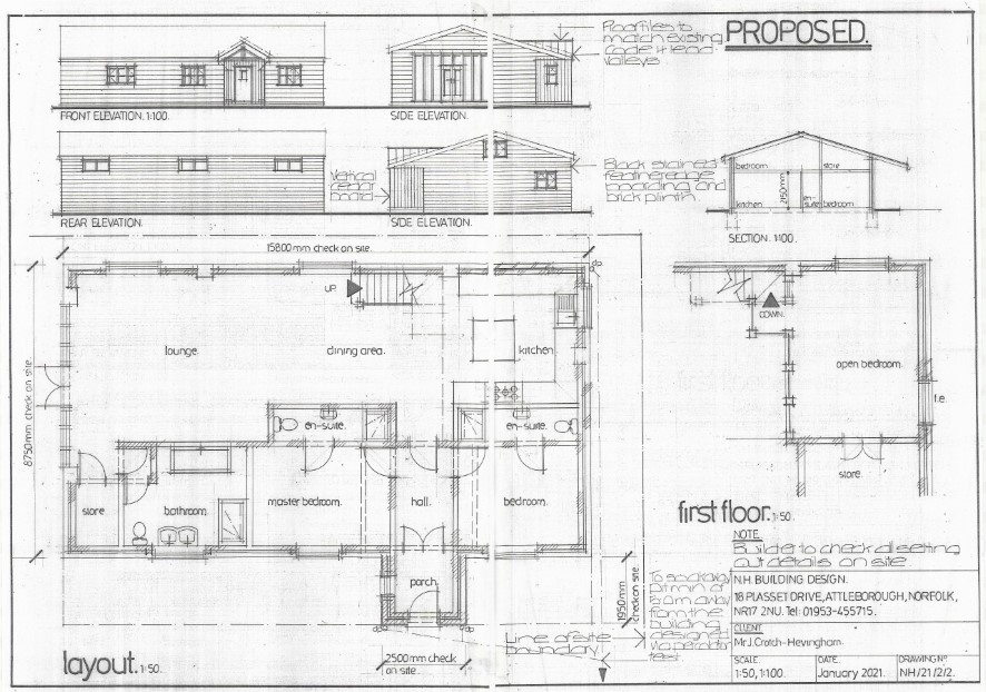
An opportunity with full planning permission for conversion of an existing former stable block/workshop set on approximately 0.35 acres, into a three bedroom residential dwelling. Full planning permission was granted by Broadland District Council (Ref: 2023/0668). Further details and plans can be found on the public access website of Broadland District Council southnorfolkandbraodland.gov.uk/planning. We are informed that the seller has already paid for the nutrient neutrality credits.

Tenure

Freehold

Planning

Full planning permission was granted by Broadland District Council on 25th June 2025 for a conversion of existing outbuilding to a three bedroom residential dwelling. Application number 2023/0668. Further details and plans can be found on the public access website of Broadland District Council southnorfolkandbraodland.gov.uk/planning.

Proposed Accommodation

Entrance porch, Open plan lounge/dining room, kitchen, Two bedrooms with ensuites, bathroom and further first floor bedroom

Services

Electric, water and mains drains

Location

The village of Hevingham itself offers two public houses, primary school, village hall, Hevingham park and local woodland works. located within five miles from the market town of Aylsham, offering local amenities to include, supermarkets, doctors and dental surgeries and schooling for all ages.

Viewings

Viewing Any reasonable time during daylight hours. Prospective purchasers should note that no liability can be held against either the vendor or the Agents, Auction House East Anglia as Auctioneers, in respect of any viewing of the land. All persons viewing should be aware that they enter the site entirely at their own risk. Viewing slots will be available please contact the Norwich Office.

Note

Please would all interested parties register their interest with the Auctioneer in order that they may be kept up to date with any developments.

Viewings

Viewings are by appointment only. The next are on Wednesday 11 March. To book an appointment please call the Norwich office.

Services

Interested parties are requested to make their own enquiries to the relevant authorities as to the availability of services.

Local Authority

Broadland District Council

Solicitors

Fairweather Law (Framlingham), Ref: Tom Burchan, Tel: 01728 727906

Important Notice to Prospective Buyers:

We draw your attention to the Special Conditions of Sale within the Legal Pack, referring to other charges in addition to the purchase price which may become payable. Such costs may include Search Fees, reimbursement of Sellers costs and Legal Fees, and Transfer Fees amongst others.

Additional Fees

Buyer's Premium - £600 inc VAT payable on exchange of contracts.

Administration Charge - £1200 inc VAT payable on exchange of contracts.

Disbursements - Please see the legal pack for any disbursements listed that may become payable by the purchaser on completion.

View Larger Map

Disclaimer: The map preview provided above is for general guidance only and may not accurately reflect the exact location or surrounding buildings. Prospective buyers and interested parties are strongly advised to independently verify the precise location and surroundings before bidding.