For Sale By Auction | 10:00, 25 March 2026 | Lot 42

32 Holway Road, Sheringham, Norfolk NR26 8HR

Sold After

  • Block of Apartments
  • 4 Bedrooms
  • Tenure: Freehold

Call the team on 01603 505 100 for more information

Auction Date

Wed 25/03/2026

Auction Time

10:00

Auction Venue

Livestream Auction

Freehold residential investment comprising three flats let producing £22,440 pa

This three storey mid terrace property is arranged as three self contained flats. Currently all are let producing £1,870 pcm (£22,440 pa). Flat A is a ground floor two bedroom flat let on a six month AST dated 22nd June 2026 at £795 pcm (£9,540 pa) Flat B is a first floor one bedroom flat let to a long established tenant at £550 pcm (£6,600 pa) Flat C is a second floor one bedroom flat let to a long established tenant at £525 pcm (£6,300 pa) Each flat has its own separate services and council tax banding. This is an ideal opportunity for an investor looking for a high yielding investment.

Tenure

Freehold

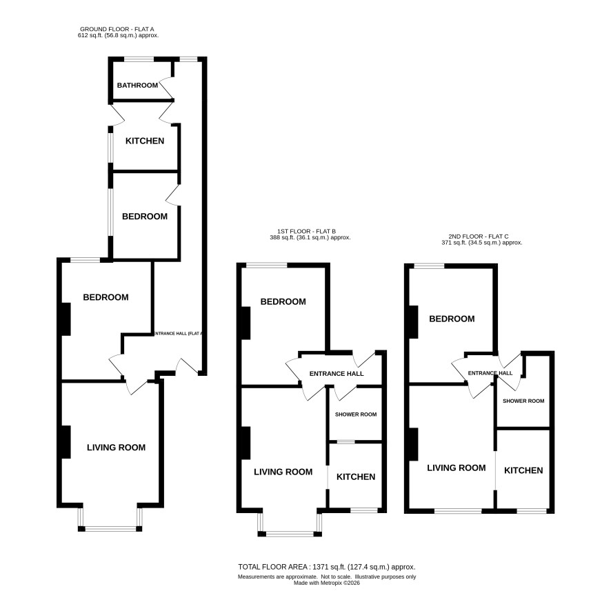
Ground floor (61 sq/m)

Communal entrance hall Flat 32A: Entrance hall, lounge, two bedrooms, kitchen, bathroom

First floor (37 sq/m)

Flat 32B: Entrance hall, shower room with wc, open plan sitting room / kitchen, bedroom

Second floor (36 sq/m)

Flat 32C: Entrance hall, shower room with wc, open plan sitting room / kitchen, bedroom

Outside

Front garden, rear garden and off road parking with access via Norfolk Road

Council Tax Band

A

Viewings

Viewings are by appointment only and in conunction with the tenants. The next available viewings are on Friday 20 March. Please call the Norwich office to book the neext available slot.

Energy Efficiency Rating (EPC)

Current Rating 32a: D 32b: C 32c: C

Services

Interested parties are requested to make their own enquiries to the relevant authorities as to the availability of services.

Local Authority

North Norfolk District Council

Solicitors

Hayes and Storr (Swaffham), Ref: Chris Cosgrave, Tel: 01760 724424

Important Notice to Prospective Buyers:

We draw your attention to the Special Conditions of Sale within the Legal Pack, referring to other charges in addition to the purchase price which may become payable. Such costs may include Search Fees, reimbursement of Sellers costs and Legal Fees, and Transfer Fees amongst others.

Additional Fees

Buyer's Premium - £840 inc VAT payable on exchange of contracts.

Administration Charge - £1200 inc VAT payable on exchange of contracts.

Disbursements - Please see the legal pack for any disbursements listed that may become payable by the purchaser on completion.

View Larger Map

Disclaimer: The map preview provided above is for general guidance only and may not accurately reflect the exact location or surrounding buildings. Prospective buyers and interested parties are strongly advised to independently verify the precise location and surroundings before bidding.