For Sale By Auction | 10:00, 25 March 2026 | Lot 43

40 Red Lion Street, Aylsham, Norwich, Norfolk NR11 6ER

*Guide | £350,000 (plus fees)

  • Detached House
  • 3 Bedrooms
  • Tenure: Freehold

Call the team on 01603 505 100 for more information

Auction Date

Wed 25/03/2026

Auction Time

10:00

Auction Venue

Livestream Auction

Tucked away three bedroom detached house with off road parking

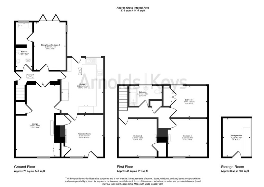
This three bedroom detached house has around 1,437 sq/ft of accommodation. It has been in the same ownership for 34 years and is now to be sold with vacant possession. It is tucked away set well back from the road in the town centre close to a comprehensive range of services and amenities. It benefits from double glazing, partial walled garden, off road parking and a good size 0.15 acre plot with a range of outbuildings. A rare opportunity and ideal for owner occupation. On instruction of executors.

Tenure

Freehold

Ground floor

Entrance hall, bathroom, dining room, kitchen, lounge, reception room

First floor

Landing, three bedrooms, bathroom

Outside

The rear garden is partially walled and mainly laid to lawn with a paved patio seating area, attached brick built store room with single glazed window to side aspect, power, lighting and water supplied with tiled flooring. There is a greenhouse, five sheds, a further brick store room and shingle parking area.

Viewings

Viewings are available by appointment only. The next are on Thursday, 18th March. Please contact the Norwich office to arrange your appointment.

Energy Efficiency Rating (EPC)

Current Rating D

Services

Interested parties are requested to make their own enquiries to the relevant authorities as to the availability of services.

Local Authority

Broadland District Council

Solicitors

Spire Solicitors LLP (Aylsham), Ref: Melissa Richards, Tel: 01263 732123

Important Notice to Prospective Buyers:

We draw your attention to the Special Conditions of Sale within the Legal Pack, referring to other charges in addition to the purchase price which may become payable. Such costs may include Search Fees, reimbursement of Sellers costs and Legal Fees, and Transfer Fees amongst others.

Additional Fees

Buyer's Premium - £960 inc VAT payable on exchange of contracts.

Administration Charge - £1200 inc VAT payable on exchange of contracts.

Disbursements - Please see the legal pack for any disbursements listed that may become payable by the purchaser on completion.

View Larger Map

Disclaimer: The map preview provided above is for general guidance only and may not accurately reflect the exact location or surrounding buildings. Prospective buyers and interested parties are strongly advised to independently verify the precise location and surroundings before bidding.