For Sale By Auction | 12:00, 24 March 2026 | Lot 20

Land Off 1 North Avenue, Stalybridge, SK15 1BZ

*Guide | £35,000+ (plus fees)

  • Land
  • Tenure: Freehold

Call the team on 0161 925 3254 for more information

Auction Date

Tue 24/03/2026

Auction Time

12:00

Auction Venue

Live Stream

AVAILABLE TO BUY POST AUCTION

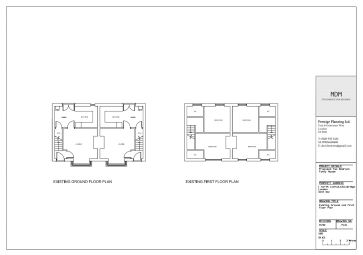
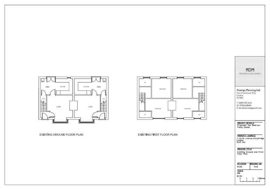
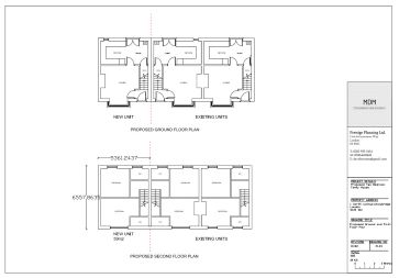
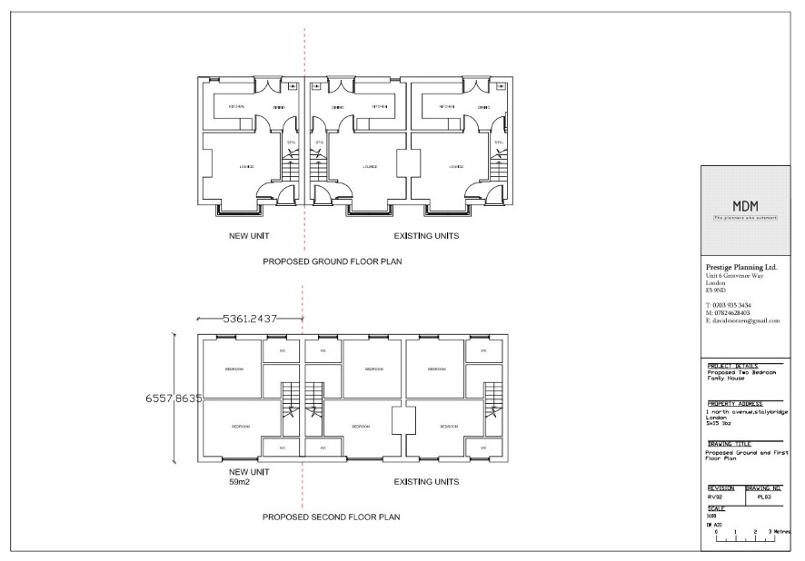
A development opportunity comprising a parcel of land benefitting from planning permission for the construction of a two storey 2 bedroom dwelling to an existing pair of semi-detached dwellings and associated works. Planning permission was approved by Tameside Council, decision issued - Mon 17 Apr 2023 with Reference (22/01226/FUL) The site fronts onto the corner of North Avenue and West Avenue adjacent to 1 North Avenue. A well-established residential location 1 mile from Stalybridge Town Centre and a 2 minute drive to Stamford Park Boating Lake.

Tenure

Freehold

Services

Interested parties are requested to make their own enquiries to the relevant authorities as to the availability of services.

Local Authority

Tameside Metropolitan Borough Council

Important Notice to Prospective Buyers:

We draw your attention to the Special Conditions of Sale within the Legal Pack, referring to other charges in addition to the purchase price which may become payable. Such costs may include Search Fees, reimbursement of Sellers costs and Legal Fees, and Transfer Fees amongst others.

Additional Fees

Administration Charge - In addition to the deposit Purchasers will be required to pay an administration fee of 1.5% inc VAT, subject to a minimum of £2,100 inc VAT.

Disbursements - Please see the legal pack for any disbursements listed that may become payable by the purchaser on completion.

View Larger Map

Disclaimer: The map preview provided above is for general guidance only and may not accurately reflect the exact location or surrounding buildings. Prospective buyers and interested parties are strongly advised to independently verify the precise location and surroundings before bidding.