For Sale By Auction | 12:00, 24 March 2026 | Lot 9

44 Romney Street, Ashton-under-Lyne, OL6 9HU

*Guide | £120,000+ (plus fees)

  • End of Terrace House
  • 2 Bedrooms
  • Tenure: Freehold

Call the team on 0161 925 3254 for more information

Auction Date

Tue 24/03/2026

Auction Time

12:00

Auction Venue

Live Stream

Viewing Times:

Fri 13 Mar

1:30pm-2:00pm

Tue 17 Mar

1:30pm-2:00pm

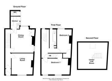
A substantial two bedroom end of terrace property in need of renovation/modernisation located close to the centre of Ashton-under-Lyne which offers convenient access to local shopping facilities, a variety of schools and excellent transport links including the Metrolink, train station and the M60 motorway network. Internal inspection will reveal an entrance hall, two reception rooms, and a kitchen to the ground floor. To the first floor are two generous bedrooms and a bathroom. There is also a large attic room to the second floor which could be converted to a bedroom, subject to relevant permissions. Externally, the property is slightly set back from the roadside with a small patio to the front and to the rear is an enclosed patio and two outbuildings. A great opportunity for investors or builders looking for a project.

Tenure

Freehold

Ground Floor

Living Room Dining Room Kitchen WC

First Floor

Bedroom 1 Bedroom 2 Bathroom

Second Floor

Loft room

Energy Efficiency Rating (EPC)

Current Rating G

Services

Interested parties are requested to make their own enquiries to the relevant authorities as to the availability of services.

Local Authority

Tameside Metropolitan Borough Council - Council Tax Band A.

Important Notice to Prospective Buyers:

We draw your attention to the Special Conditions of Sale within the Legal Pack, referring to other charges in addition to the purchase price which may become payable. Such costs may include Search Fees, reimbursement of Sellers costs and Legal Fees, and Transfer Fees amongst others.

Additional Fees

Administration Charge - In addition to the deposit Purchasers will be required to pay an administration fee of 1.5% inc VAT, subject to a minimum of £2,100 inc VAT.

Disbursements - £360 inc VAT.

Please see the legal pack for any disbursements listed that may become payable by the purchaser on completion.

View Larger Map

Disclaimer: The map preview provided above is for general guidance only and may not accurately reflect the exact location or surrounding buildings. Prospective buyers and interested parties are strongly advised to independently verify the precise location and surroundings before bidding.