For Sale By Auction | 12:00, 24 March 2026 | Lot 10

Land Off Worsley Street, Accrington, Lancashire, BB5 2PA

*Guide | £40,000+ (plus fees)

  • Land
  • Tenure: Freehold

Call the team on 0161 925 3254 for more information

Auction Date

Tue 24/03/2026

Auction Time

12:00

Auction Venue

Live Stream

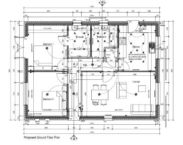
Development Plot – Worsley Street, Accrington

A small development opportunity situated on Worsley Street, just off Manchester Road in Accrington. Access is via Henry Street, turning right shortly before the Victoria Hotel, with the plot positioned at the end of the street and enjoying attractive views over neighbouring countryside. Planning permission has been granted for the construction of a detached two-bedroom bungalow. Owing to the sloping nature of the site, the design incorporates a basement level, providing additional space and flexibility. The proposed accommodation comprises: entrance hallway, lounge and dining room, kitchen, two bedrooms (one with en-suite), and a separate bathroom. Externally, the plans include parking for two vehicles and a side garden area, making this an appealing opportunity for developers or self-builders seeking a well-located residential project.

Tenure

Freehold

Services

Interested parties are requested to make their own enquiries to the relevant authorities as to the availability of services.

Local Authority

Hyndburn Borough Council.

Important Notice to Prospective Buyers:

We draw your attention to the Special Conditions of Sale within the Legal Pack, referring to other charges in addition to the purchase price which may become payable. Such costs may include Search Fees, reimbursement of Sellers costs and Legal Fees, and Transfer Fees amongst others.

Additional Fees

Administration Charge - In addition to the deposit Purchasers will be required to pay an administration fee of 1.5% inc VAT, subject to a minimum of £2,100 inc VAT.

Disbursements - Please see the legal pack for any disbursements listed that may become payable by the purchaser on completion.

View Larger Map

Disclaimer: The map preview provided above is for general guidance only and may not accurately reflect the exact location or surrounding buildings. Prospective buyers and interested parties are strongly advised to independently verify the precise location and surroundings before bidding.