For Sale By Auction | 12:00, 25 March 2026 | Lot 59

12 Willow Court, Pool in Wharfedale, Otley, West Yorkshire LS21 1RX

*Guide | £320,000 (plus fees)

  • Detached Bungalow
  • 3 Bedrooms

Call the team on 0113 393 3482 for more information

Auction Date

Wed 25/03/2026

Auction Time

12:00

Auction Venue

Live Stream

This is a unique opportunity to purchase a three-bedroom detached house, positioned on a generous-sized corner plot (0.56acres). The house is in dated condition, but there’s the opportunity for someone to add their own stamp and potentially develop the site (subject to necessary planning). The property benefits from a driveway, garage, and large wrap-around mature gardens. The property is located on a popular cul-de-sac within Pool in Wharfedale, which is a village located between Otley and Leeds. It has local amenities including a local pub, school, and sports club, with further amenities found in nearby Otley. It’s popular with commuters as it’s 9 miles North of Leeds, and a 30-minute drive. Please note: a 6 week completion applies to this lot

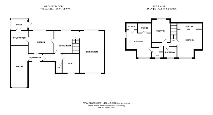
Ground Floor

Living room, dining room, kitchen, study, wc, utility and garage.

First Floor

Three bedrooms, en suite, wc and bathroom.

Externally

Garage, driveway and wrap around garden.

Additional Information

Council Tax

Band E.

EPC

Rating E.

Tenure

Freehold.

Charges & Payments

In addition to the deposit Administration Charge: 1.5% inc VAT of the purchase price subject to a minimum of £2,100 inc VAT. Searches £360 inc VAT

Important Notice to Prospective Buyers:

We draw your attention to the Special Conditions of Sale within the Legal Pack, referring to other charges in addition to the purchase price which may become payable. Such costs may include Search Fees, reimbursement of Sellers costs and Legal Fees, and Transfer Fees amongst others.

Additional Fees

Administration Charge - See above

Disbursements - Please see the legal pack for any disbursements listed that may become payable by the purchaser on completion.

View Larger Map

Disclaimer: The map preview provided above is for general guidance only and may not accurately reflect the exact location or surrounding buildings. Prospective buyers and interested parties are strongly advised to independently verify the precise location and surroundings before bidding.