For Sale By Auction | 12:00, 25 March 2026 | Lot 58

13 Stanley View, Leeds, West Yorkshire LS12 1TS

*Guide | £95,000 (plus fees)

  • Terraced House
  • 4 Bedrooms

Call the team on 0113 393 3482 for more information

Auction Date

Wed 25/03/2026

Auction Time

12:00

Auction Venue

Live Stream

This double fronted four bedroom, two bathroom back to back end terrace sold with vacant possession is offered for sale via traditional auction. The property would benefit from some internal renovation but would be a great project or addition to a rental portfolio. Located in a popular residential location within easy reach of Leeds City Centre, Ring Road and Motorway Networks. Good bus routes. Armley Town Street and Armley Leisure centre are nearby.

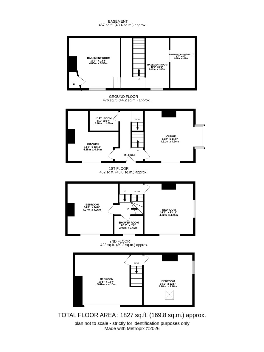
Lower Ground Floor

3 x basement rooms.

Ground Floor

Lounge, kitchen and bathroom.

First Floor

Two bedrooms and shower room.

Second Floor

Two bedrooms.

Additional Information

Council Tax

Band A.

EPC Rating

E.

Tenure

Freehold.

Charges & Payments

In addition to the deposit Administration Charge: 1.5% inc VAT of the purchase price subject to a minimum of £2,100 inc VAT. Searches £360 inc VAT.

Important Notice to Prospective Buyers:

We draw your attention to the Special Conditions of Sale within the Legal Pack, referring to other charges in addition to the purchase price which may become payable. Such costs may include Search Fees, reimbursement of Sellers costs and Legal Fees, and Transfer Fees amongst others.

Additional Fees

Administration Charge - See above

Disbursements - Please see the legal pack for any disbursements listed that may become payable by the purchaser on completion.

View Larger Map

Disclaimer: The map preview provided above is for general guidance only and may not accurately reflect the exact location or surrounding buildings. Prospective buyers and interested parties are strongly advised to independently verify the precise location and surroundings before bidding.