For Sale By Auction | 12:00, 13 May 2026

Wharfedale Delivery Office, Hebden Road, Grassington, Skipton, North Yorkshire BD23 5DG

*Guide | £280,000 (plus fees)

  • Commercial Property
  • Tenure: Freehold

Call the team on 0113 393 3482 for more information

Auction Date

Wed 13/05/2026

Auction Time

12:00

Auction Venue

Live Stream

This substantial commercial premises totals approximately 296 sq m (3,195 sq ft) and although offered with vacant possession, was most recently used as a Royal Mail delivery office. Internally the property comprises a delivery / loading area accessed via three roller shutter doors with a large open plan office, smaller offices, staff room and WC’s. Externally the property sits across two titles totalling approximately 0.18 hectares (0.44 acres) and should be of interest to a range of buyers including owner occupiers, investors and developers subject to the usual planning consents having to be obtained. Sitting in an enviable location in the picture postcard market town of Grassington and just over the road from the Grassington National Park Visitor Centre and car park. The town itself has a cobbled market square fringed by shops, cafes and restaurants all against a backdrop of the beautiful Yorkshire Dales.

Tenure

Freehold

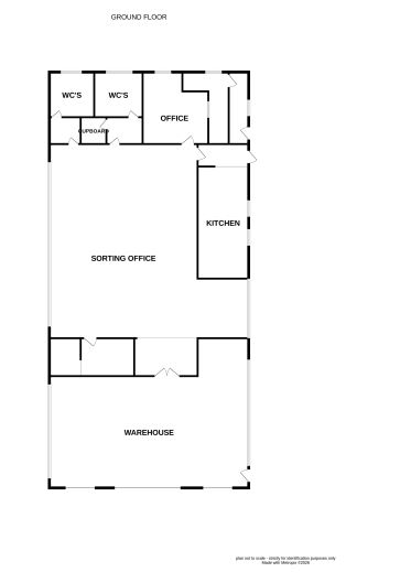
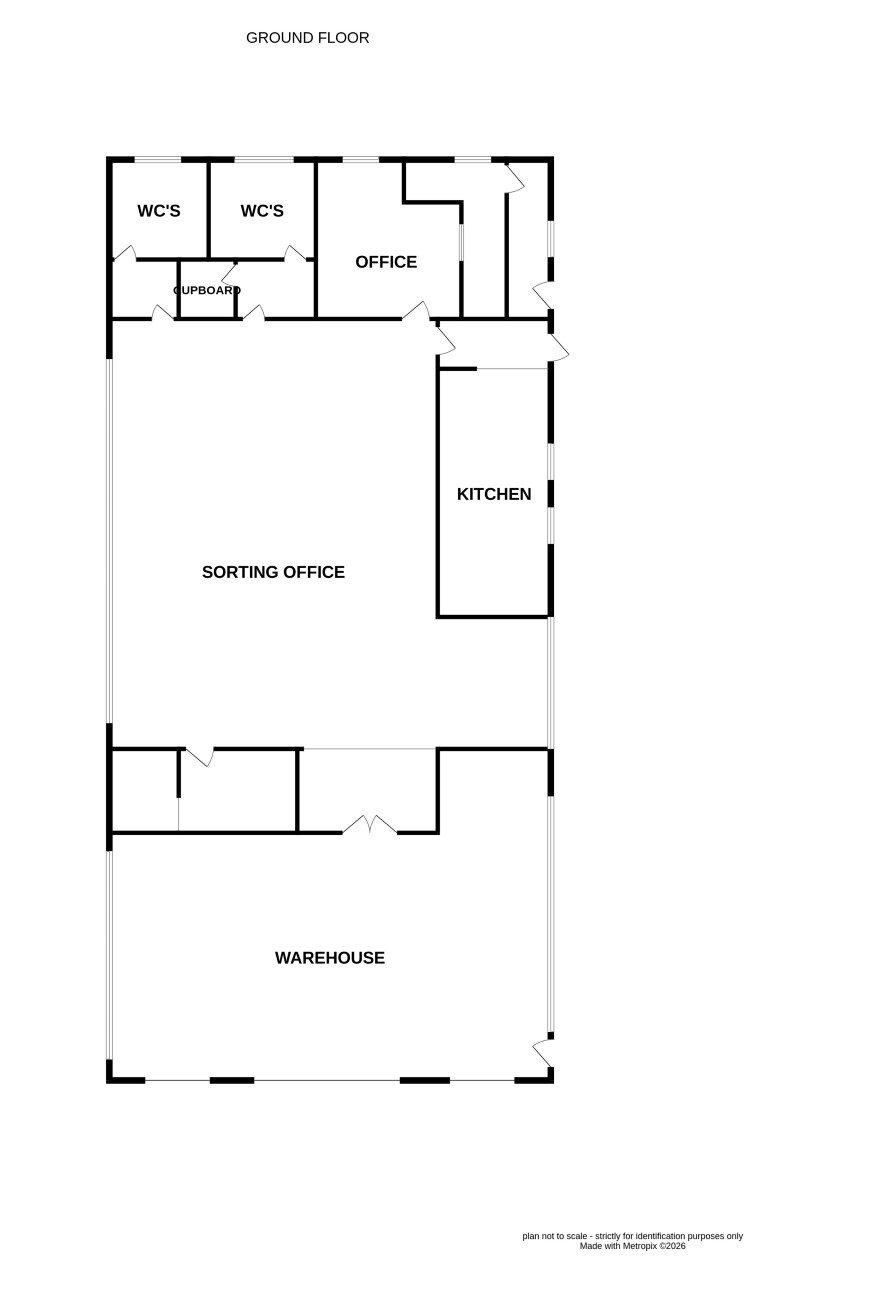
Ground Floor

Delivery / loading area accessed via three roller shutter doors with a large open plan office, smaller offices, staff room and WC’s.

Additional Information

Local Authority

North Yorkshire Council

EPC Rating

F

Tenure

Freehold

Charges and Payments

In addition to the deposit Administration Charge: 1.5% inc VAT of the purchase price subject to a minimum of £2,100 inc VAT. Buyer’s Premium: 2.4% inc VAT.

Important Notice to Prospective Buyers:

We draw your attention to the Special Conditions of Sale within the Legal Pack, referring to other charges in addition to the purchase price which may become payable. Such costs may include Search Fees, reimbursement of Sellers costs and Legal Fees, and Transfer Fees amongst others.

Additional Fees

Administration Charge - See above

Disbursements - Please see the legal pack for any disbursements listed that may become payable by the purchaser on completion.

View Larger Map

Disclaimer: The map preview provided above is for general guidance only and may not accurately reflect the exact location or surrounding buildings. Prospective buyers and interested parties are strongly advised to independently verify the precise location and surroundings before bidding.