Postponed | Lot 7

Flats 1-5 & 7B, 7 Fairfax Road, Leeds, West Yorkshire LS11 8SY

Postponed

  • Block of Apartments
  • 7 Bedrooms

Call the team on 0113 393 3482 for more information

Auction Date

Wed 13/05/2026

Auction Time

12:00

Auction Venue

Live Stream

We’re offering this rare investment opportunity via traditional method of auction on the 13th May. This large, detached property was initially built for the Lord Mayor of Leeds in the 1850’s, but now comprises six self-contained flats, including 2 x studios, 3 x 1 bedrooms, and a 2-bedroom apartment. The entire property is tenanted with young professionals, and is currently generating £47,148, however there is potential to increase this. The vendor has owned the property for 45 years and has maintained it extremely well throughout, with good insulation, so there’s no work required for a buyer. In addition, the property benefits from a driveway, large outbuilding, mature gardens and a secure bike shed. An additional bonus, is the 79sqm outbuilding that has been granted planning permission to convert it into a self-contained two-bedroom apartment (22/03543/FU). Proof of commencement of works can be found in the legal pack. If this conversion was carried out, this could increase the total income to £61,548 per annum. In December 2025, plans were submitted to convert the garage into 2 x one bedroom apartments, but this has been rejected. However, we’ve been advised there are grounds for this to be appealed. If converted into two flats, this could further increase the total income to approximately £65,148 per annum. Please note: a 6 week completion applies to this lot.

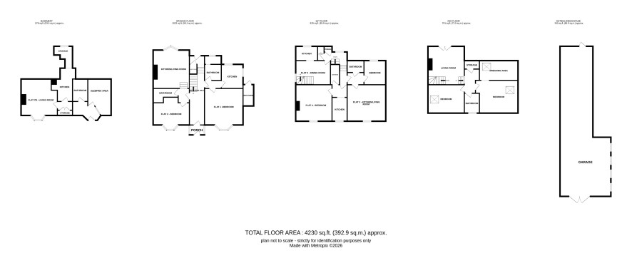
Lower Ground Floor

Flat 7b: Living room, kitchen, sleeping area, bathroom and study/storage room.

Ground Floor

Flat 1: Living room/bedroom, kitchen and bathroom Flat 2: Living room/kitchen, bedroom and shower room.

First Floor

Flat 3: Living room/kitchen, bedroom and bathroom Flat 4: Living room/bedroom, kitchen and shower room Flat 5: Dining hall and kitchen.

Second Floor

Flat 5: Living room, two bedrooms and a shower room.

Externally

Driveway, garage, bike shed and rear garden

Additional Information

Council Tax

Leeds City Council - all flats Band A

EPC Ratings

All flats rated C

Tenure

Freehold

Charges and Payments

In addition to the deposit Administration Charge: 1.5% inc VAT of the purchase price subject to a minimum of £2,100 inc VAT. Searches £360 inc VAT.

Important Notice to Prospective Buyers:

We draw your attention to the Special Conditions of Sale within the Legal Pack, referring to other charges in addition to the purchase price which may become payable. Such costs may include Search Fees, reimbursement of Sellers costs and Legal Fees, and Transfer Fees amongst others.

Additional Fees

Administration Charge - See above

Disbursements - Please see the legal pack for any disbursements listed that may become payable by the purchaser on completion.

View Larger Map

Disclaimer: The map preview provided above is for general guidance only and may not accurately reflect the exact location or surrounding buildings. Prospective buyers and interested parties are strongly advised to independently verify the precise location and surroundings before bidding.